Lustenau - Doppelstöckige 3 Zimmerwohnung zur Miete!
Bruttomiete: 1.416,15 €
ImmoNr.
5930
Vermarktungsart
Miete
Objektart
Wohnung
PLZ
6890
Ort
Lustenau
Bundesland
Vorarlberg
Bruttomiete
1.416,15 €
Baujahr
2021
Anzahl Stellplätze
1
Anzahl Zimmer
3
Wohnfläche
77,00 m²
Heizung
Gas
Fußbodenheizung
Fußbodenheizung
Ausstattung
Fahrradraum
Lustenau - Doppelstöckige 3 Zimmerwohnung zur Miete!
Absolute Top-Ausstattung! Wohnung in der Staldenstraße 38c, Lustenau zu vermieten!
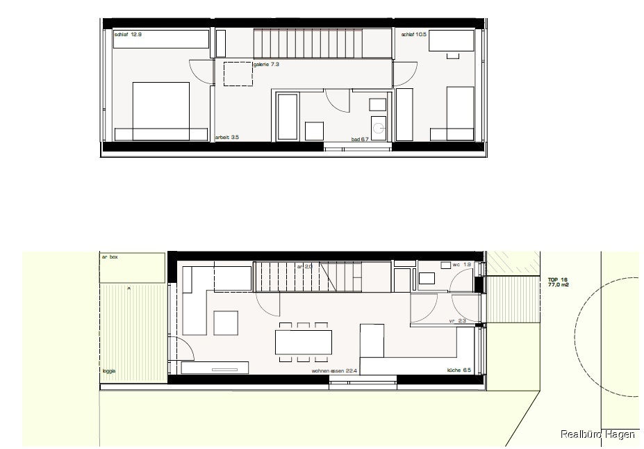
Die Wohnanlage besteht aus 3 Gebäuden, 20 Wohneinheiten, Tiefgarage und einem Fahrradraum.
Die doppelstöckige Wohnung Top 16 befindet sich im Haus C im Erdgeschoss bzw. 1. Obergeschoss und bietet einen hohen Wohnkomfort.
Einteilung:
Erdgeschoss:
- Eingangsbereich
- Kochen/Essen/Wohnen
- WC
- Abstellraum unter der Stiege
- Balkon
1. Geschoss:
- Schlafzimmer
- Kinderzimmer
- Badezimmer und WC
- Offener Nieschenbereich
Highlights:
- Zentrale Lage
- Balkon mit Abstellbox
- Parkettboden
- Hochwertige Küchen- und Badezimmerausstattung
- Jalousien und Senkrechtmarkisen, elektrisch bedienbar
Miete Wohnung: € 1.150,18 (inkl. USt.)
Miete Tiefgaragenplatz: € 56,62 pro Monat
Betriebskosten: Ca. € 265,97
Kaution: € 4.420,00 mittels Barüberweisung oder Bankgarantie
Bezugstermin: Ab 15.01.2026
Heizwärmebedarf/Klasse: 35,00 kWh/m²a / B
Die Wohnanlage besteht aus 3 Gebäuden, 20 Wohneinheiten, Tiefgarage und einem Fahrradraum.
Die doppelstöckige Wohnung Top 16 befindet sich im Haus C im Erdgeschoss bzw. 1. Obergeschoss und bietet einen hohen Wohnkomfort.
Einteilung:
Erdgeschoss:
- Eingangsbereich
- Kochen/Essen/Wohnen
- WC
- Abstellraum unter der Stiege
- Balkon
1. Geschoss:
- Schlafzimmer
- Kinderzimmer
- Badezimmer und WC
- Offener Nieschenbereich
Highlights:
- Zentrale Lage
- Balkon mit Abstellbox
- Parkettboden
- Hochwertige Küchen- und Badezimmerausstattung
- Jalousien und Senkrechtmarkisen, elektrisch bedienbar
Miete Wohnung: € 1.150,18 (inkl. USt.)
Miete Tiefgaragenplatz: € 56,62 pro Monat
Betriebskosten: Ca. € 265,97
Kaution: € 4.420,00 mittels Barüberweisung oder Bankgarantie
Bezugstermin: Ab 15.01.2026
Heizwärmebedarf/Klasse: 35,00 kWh/m²a / B
Ort
Weitere Informationen
Haben wir Ihr Interesse geweckt?
Dann vereinbaren Sie doch einfach einen Termin mit uns – eine Besichtigung lohnt sich.
Das Realbüro Hagen-Team garantiert professionelle Beratung und völlige Unabhängigkeit.
Durch unsere ausgeprägte Kompetenz und langjährige Erfahrung versichern wir Ihnen eine problemlose und sorgenfreie Abwicklung bis zur Schlüsselübergabe und darüber hinaus.
Ihr Ansprechpartner:
Leonie Schönleitner (Tel. 05577/83 111-13) oder
leonie.schoenleitner@realbuerohagen.at
Sonstige Auslagen:
Vertragserrichtungskosten
Dann vereinbaren Sie doch einfach einen Termin mit uns – eine Besichtigung lohnt sich.
Das Realbüro Hagen-Team garantiert professionelle Beratung und völlige Unabhängigkeit.
Durch unsere ausgeprägte Kompetenz und langjährige Erfahrung versichern wir Ihnen eine problemlose und sorgenfreie Abwicklung bis zur Schlüsselübergabe und darüber hinaus.
Ihr Ansprechpartner:
Leonie Schönleitner (Tel. 05577/83 111-13) oder
leonie.schoenleitner@realbuerohagen.at
Sonstige Auslagen:
Vertragserrichtungskosten
Dürfen wir weiterhelfen?
Ihr Ansprechpartner
Leonie Schönleitner
Immo Kontakt Formular
ImmoNr.: 5930
Weitere Immobilien in Ihrer Nähe









































