Anlageobjekt in Bregenz: 3 Appartements zu verkaufen
Kaufpreis: 525.000,00 €
ImmoNr.
5630
Vermarktungsart
Kauf
Objektart
Zinshausrenditeobjekt
Objekttyp
Mehrfamilienhaus
PLZ
6900
Ort
Bregenz
Bundesland
Vorarlberg
Kaufpreis
525.000,00 €
Baujahr
1945
Wohnfläche
141,00 m²
Anlageobjekt in Bregenz: 3 Appartements zu verkaufen
Das Haus wurde umfangreich saniert und wird momentan möbliert an Handwerker vermietet.
Die Infrarotheizung-Paneele in den Apartments sorgen für eine angenehme und gleichmäßige Wärme.
Das Apartment im 2. Obergeschoss verfügt zusätzlich über eine effiziente Pelletheizung.
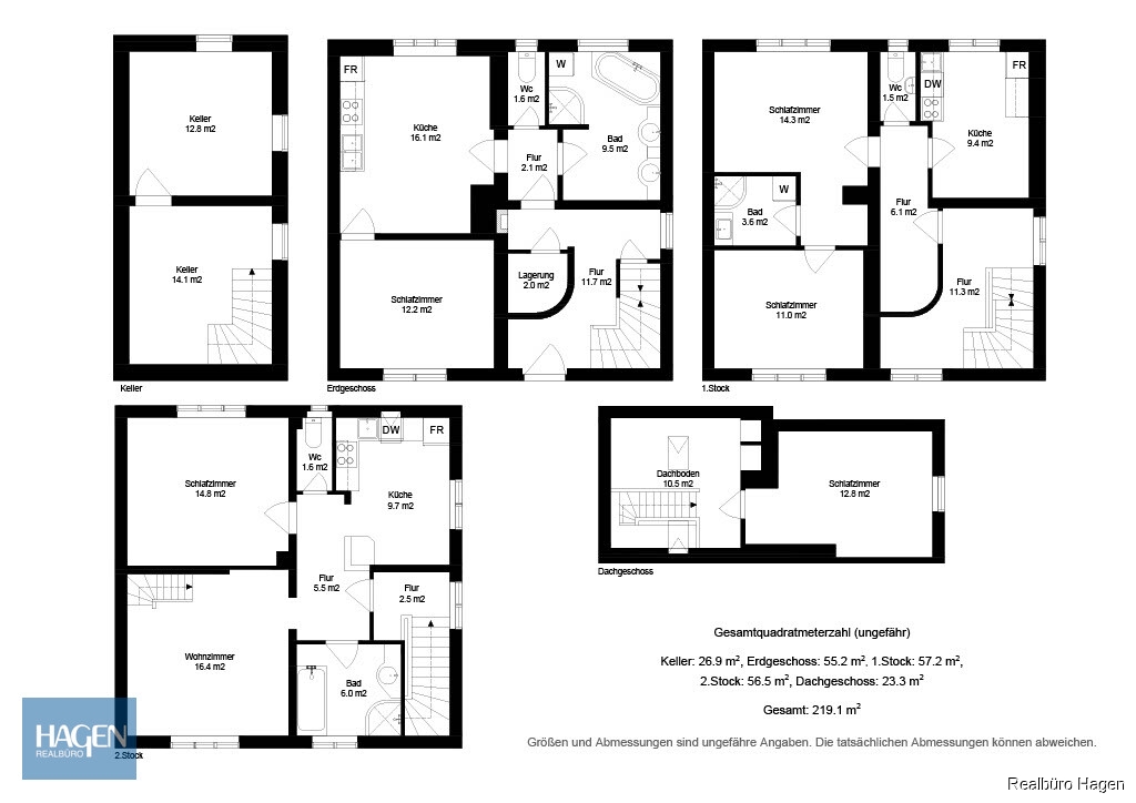
Keller - ca. 60 m²
EG - ca. 40 m²
1. OG - ca. 45 m²
2. OG - ca. 56 m² exkl. Dachschrägen
Die im Exposé angegebenen Flächen wurden mittels grober Näherungsrechnung gemäß den verfügbaren Unterlagen sowie Auskünfte der Eigentümer ermittelt. Für die Richtigkeit und Vollständigkeit der Flächenangaben wird jedoch keine Haftung übernommen. Zwei zugewiesene Parkplätze befinden sich vor dem Objekt.
Der Energieausweis ist in Erstellung.
Die Infrarotheizung-Paneele in den Apartments sorgen für eine angenehme und gleichmäßige Wärme.
Das Apartment im 2. Obergeschoss verfügt zusätzlich über eine effiziente Pelletheizung.
Keller - ca. 60 m²
EG - ca. 40 m²
1. OG - ca. 45 m²
2. OG - ca. 56 m² exkl. Dachschrägen
Die im Exposé angegebenen Flächen wurden mittels grober Näherungsrechnung gemäß den verfügbaren Unterlagen sowie Auskünfte der Eigentümer ermittelt. Für die Richtigkeit und Vollständigkeit der Flächenangaben wird jedoch keine Haftung übernommen. Zwei zugewiesene Parkplätze befinden sich vor dem Objekt.
Der Energieausweis ist in Erstellung.
Ort
Weitere Informationen
Haben wir Ihr Interesse geweckt?
Dann vereinbaren Sie doch einfach einen Termin mit uns – eine Besichtigung lohnt sich.
Das Realbüro Hagen-Team garantiert professionelle Beratung und völlige Unabhängigkeit.
Durch unsere ausgeprägte Kompetenz und langjährige Erfahrung versichern wir Ihnen eine problemlose und sorgenfreie Abwicklung bis zur Schlüsselübergabe und darüber hinaus.
Ihr Ansprechpartner:
Ralph Moser (Tel. 05577/83 111-20) oder
ralph.moser@realbuerohagen.at
Sonstige Auslagen:
3,5% Grunderwerbsteuer
1,1% Grundbucheintragungsgebühr
Vertragserrichtungskosten und Barauslagen
3% Vermittlungshonorar (+ 20% USt.) lt. empfohlener Geschäftsbedingungen der Bundesinnung gemäß § 10 IMV 1996, i.d.g.F.
Dann vereinbaren Sie doch einfach einen Termin mit uns – eine Besichtigung lohnt sich.
Das Realbüro Hagen-Team garantiert professionelle Beratung und völlige Unabhängigkeit.
Durch unsere ausgeprägte Kompetenz und langjährige Erfahrung versichern wir Ihnen eine problemlose und sorgenfreie Abwicklung bis zur Schlüsselübergabe und darüber hinaus.
Ihr Ansprechpartner:
Ralph Moser (Tel. 05577/83 111-20) oder
ralph.moser@realbuerohagen.at
Sonstige Auslagen:
3,5% Grunderwerbsteuer
1,1% Grundbucheintragungsgebühr
Vertragserrichtungskosten und Barauslagen
3% Vermittlungshonorar (+ 20% USt.) lt. empfohlener Geschäftsbedingungen der Bundesinnung gemäß § 10 IMV 1996, i.d.g.F.
Dürfen wir weiterhelfen?
Ihr Ansprechpartner
Ralph Moser
Immo Kontakt Formular
ImmoNr.: 5630
Weitere Immobilien in Ihrer Nähe









































