Top-Investment in Bestlage: Wohn- und Geschäftshaus in der Bregenzer Kaiserstraße
Kaufpreis: auf Anfrage
ImmoNr.
5598
Vermarktungsart
Kauf
Objektart
Haus
PLZ
6900
Ort
Bregenz
Bundesland
Vorarlberg
Kaufpreis
auf Anfrage
Baujahr
1820
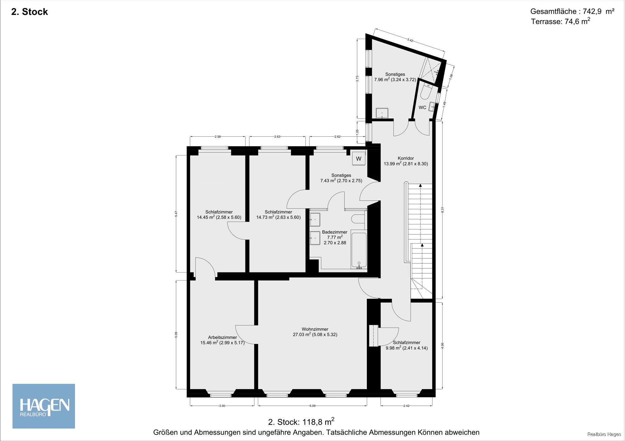
Nutzfläche
742,00 m²
Heizung
Gas
Top-Investment in Bestlage: Wohn- und Geschäftshaus in der Bregenzer Kaiserstraße
Seltene Gelegenheit - Liegenschaft in Bregenz zu verkaufen!
Zum Verkauf steht ein attraktives Wohn- und Geschäftshaus in bester Lage der Bregenzer Innenstadt, in der beliebten Fußgängerzone der Kaiserstraße. Dieses Mehrzweckobjekt bietet großzügige Möglichkeiten für Gewerbe, Wohnen oder auch eine Kombination beider Nutzungsmöglichkeiten. Die zentrale Lage im Herzen von Bregenz, nur wenige Gehminuten vom Bodensee entfernt, macht diese Immobilie besonders wertvoll – sowohl für Investoren als auch für Selbstnutzer.
Die Geschäftsfläche im Erdgeschoss ist an ein renommiertes und etabliertes Unternehmen vermietet. Im Jahr 1997 wurde das Geschäftslokal umfassend umgebaut und modernisiert. Im Zuge dieses Umbaus wurde zusätzlich zur bestehenden Lüftungsanlage eine Klimaanlage installiert.
Im 1. Obergeschoss befindet sich eine ehemalige Arztpraxis, die derzeit leer steht und weiteres Vermietungspotenzial als Bürofläche oder Kanzlei bietet. Auch diese Einheit ist mit einer Klimaanlage ausgestattet.
Das Gebäude erstreckt sich über mehrere Etagen und ist sowohl als Geschäftslokal im Erdgeschoss als auch für verschiedene Wohnnutzungseinheiten im Obergeschoss geeignet. Der ideale Standort für Ihr Unternehmen oder Ihr neues Zuhause in einer der begehrtesten Adressen in Bregenz.
Lage:
Die Kaiserstraße ist eine der bekanntesten und frequentiertesten Einkaufsstraßen in Bregenz und gehört zur Fußgängerzone, was für Ihre zukünftige Geschäftsnutzung eine hohe Sichtbarkeit und ein hohes Passantenaufkommen garantiert. In direkter Nähe finden sich zahlreiche Einzelhandelsgeschäfte, Restaurants, Cafés und die wichtigsten kulturellen Sehenswürdigkeiten der Stadt, wie das Festspielhaus und das Vorarlberger Landesmuseum.
Die Flächen wurden digital erhoben. Eine Gewährleistung für die Angaben wird ausdrücklich abgelehnt. Die Vermessung durch einen staatlich befugten Geometer hätte zu erfolgen.
Zum Verkauf steht ein attraktives Wohn- und Geschäftshaus in bester Lage der Bregenzer Innenstadt, in der beliebten Fußgängerzone der Kaiserstraße. Dieses Mehrzweckobjekt bietet großzügige Möglichkeiten für Gewerbe, Wohnen oder auch eine Kombination beider Nutzungsmöglichkeiten. Die zentrale Lage im Herzen von Bregenz, nur wenige Gehminuten vom Bodensee entfernt, macht diese Immobilie besonders wertvoll – sowohl für Investoren als auch für Selbstnutzer.
Die Geschäftsfläche im Erdgeschoss ist an ein renommiertes und etabliertes Unternehmen vermietet. Im Jahr 1997 wurde das Geschäftslokal umfassend umgebaut und modernisiert. Im Zuge dieses Umbaus wurde zusätzlich zur bestehenden Lüftungsanlage eine Klimaanlage installiert.
Im 1. Obergeschoss befindet sich eine ehemalige Arztpraxis, die derzeit leer steht und weiteres Vermietungspotenzial als Bürofläche oder Kanzlei bietet. Auch diese Einheit ist mit einer Klimaanlage ausgestattet.
Das Gebäude erstreckt sich über mehrere Etagen und ist sowohl als Geschäftslokal im Erdgeschoss als auch für verschiedene Wohnnutzungseinheiten im Obergeschoss geeignet. Der ideale Standort für Ihr Unternehmen oder Ihr neues Zuhause in einer der begehrtesten Adressen in Bregenz.
Lage:
Die Kaiserstraße ist eine der bekanntesten und frequentiertesten Einkaufsstraßen in Bregenz und gehört zur Fußgängerzone, was für Ihre zukünftige Geschäftsnutzung eine hohe Sichtbarkeit und ein hohes Passantenaufkommen garantiert. In direkter Nähe finden sich zahlreiche Einzelhandelsgeschäfte, Restaurants, Cafés und die wichtigsten kulturellen Sehenswürdigkeiten der Stadt, wie das Festspielhaus und das Vorarlberger Landesmuseum.
Die Flächen wurden digital erhoben. Eine Gewährleistung für die Angaben wird ausdrücklich abgelehnt. Die Vermessung durch einen staatlich befugten Geometer hätte zu erfolgen.
Ort
Weitere Informationen
Haben wir Ihr Interesse geweckt?
Dann vereinbaren Sie doch einfach einen Termin mit uns – eine Besichtigung lohnt sich.
Das Realbüro Hagen-Team garantiert professionelle Beratung und völlige Unabhängigkeit.
Durch unsere ausgeprägte Kompetenz und langjährige Erfahrung versichern wir Ihnen eine problemlose und sorgenfreie Abwicklung bis zur Schlüsselübergabe und darüber hinaus.
Ihr Ansprechpartner:
Ralph Moser (Tel. 05577/83 111-20) oder
ralph.moser@realbuerohagen.at
Sonstige Auslagen:
3,5% Grunderwerbsteuer
1,1% Grundbucheintragungsgebühr
Vertragserrichtungskosten und Barauslagen
3% Vermittlungshonorar (+ 20% USt.) lt. empfohlener Geschäftsbedingungen der Bundesinnung gemäß § 10 IMV 1996, i.d.g.F.
Dann vereinbaren Sie doch einfach einen Termin mit uns – eine Besichtigung lohnt sich.
Das Realbüro Hagen-Team garantiert professionelle Beratung und völlige Unabhängigkeit.
Durch unsere ausgeprägte Kompetenz und langjährige Erfahrung versichern wir Ihnen eine problemlose und sorgenfreie Abwicklung bis zur Schlüsselübergabe und darüber hinaus.
Ihr Ansprechpartner:
Ralph Moser (Tel. 05577/83 111-20) oder
ralph.moser@realbuerohagen.at
Sonstige Auslagen:
3,5% Grunderwerbsteuer
1,1% Grundbucheintragungsgebühr
Vertragserrichtungskosten und Barauslagen
3% Vermittlungshonorar (+ 20% USt.) lt. empfohlener Geschäftsbedingungen der Bundesinnung gemäß § 10 IMV 1996, i.d.g.F.
Dürfen wir weiterhelfen?
Ihr Ansprechpartner
Ralph Moser
Immo Kontakt Formular
ImmoNr.: 5598
Weitere Immobilien in Ihrer Nähe





























