Neubau im Zentrum - Top A.02 3-Zimmerwohnung mit Garten WOHNBAUFÖRDERUNG
Kaufpreis: 595.000,00 €
ImmoNr.
5296_2
Vermarktungsart
Kauf
Objektart
Wohnung
Objekttyp
Erdgeschoss
PLZ
6890
Ort
Lustenau
Bundesland
Vorarlberg
Kaufpreis
595.000,00 €
Baujahr
2025
Anzahl Stellplätze
1
Anzahl Zimmer
3
Gartenfläche
61,61 m²
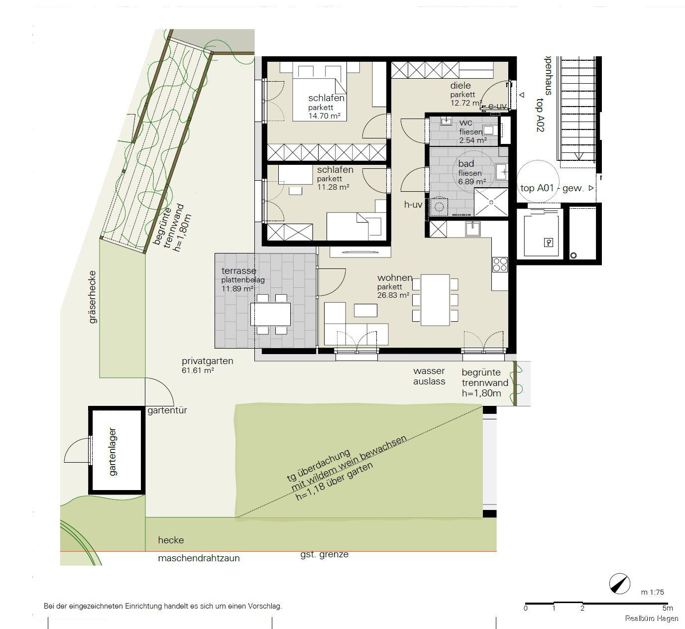
Wohnfläche
74,96 m²
Neubau im Zentrum - Top A.02 3-Zimmerwohnung mit Garten WOHNBAUFÖRDERUNG
Erstklassige 3-Zimmerwohnung mit Garten in Lustenau zu verkaufen!
Diese exklusive Wohnanlage im Zentrum von Lustenau wurde von der Revital Immobilien GmbH entwickelt.
WOHNUNG:
Die hochwertig ausgestattete 3-Zimmerwohnung mit ca. 75 m² Wohnfläche befindet sich in bester Lage in Lustenau. Die durchdachte Raumaufteilung und ausgewählte Materialien schaffen eine moderne, edle Atmosphäre. Großformatige Fliesen, eine Duschverglasung in Echtglas sowie eine erstklassige Sanitärausstattung gehören zum Standard. Der Parkettboden in Eiche kann geölt oder lackiert gewählt werden. Die Fenster werden in Holz-Alu mit 3-fach Isolierverglasung ausgeführt. Der süd-westseitig ausgerichtete, ca. 62 m² große private Garten ist eine wahre grüne Oase inmitten des modernen Flairs der Wohnanlage.
PROJEKT:
Die Wohnanlage besticht durch ihre Architektur, die hochwertige, moderne Ausstattung sowie Barrierefreiheit. Die beiden Gebäude werden in massiver Bauweise errichtet und sind mit einer Wärmepumpe mit Passivkühling über Erdsonden ausgestattet. Sowohl die Heizung und Warmwasserbereitung als auch die passive Kühlung erfolgen über die Wärmepumpe. Ergänzend wird eine PV-Anlage auf dem Dach angebracht. Auch für E-Mobilität ist gesorgt: Anschlüsse für PKW werden vorbereitet und können bei Bedarf selbst ausgeführt werden. Für Fahrräder stehen Lademöglichkeiten im Abstellraum zur Verfügung. Außerdem bietet der Fahrradraum eine Waschmöglichkeit sowie ein Reparaturset für Fahrräder. Im Eingangsbereich wird ein digitaler Infoscreen angebracht, damit Sie immer auf dem Laufenden sind. Die Paketboxen im Außenbereich des Gebäudes lassen Ihre Online-Bestellungen sicher aufbewahren. Ein Spielplatz mit Liegewiese und Sitzmöglichkeiten wird bei den jüngsten Bewohnern und deren Eltern Anklang finden. Gartenfreunde fühlen sich bestimmt wohl beim Pflegen der insgesamt vier Hochbeete oder genießen den Garten und anschließend einen Feierabendrink in der Gastronomie im Erdgeschoss des Hauses.
Das besondere Plus bietet bei Bedarf das optionale Senior-Package:
Klappsitze und Haltestangen in den Duschen, stufenlose Duschen, Lichtschalter auf 85 cm statt auf
105 cm Höhe, elektrische Türöffner für Wohnungseingangstüre.
LAGE:
Die Jahnstraße in Lustenau befindet sich im Zentrum der Marktgemeinde und bietet die Möglichkeit, fußläufig oder mit dem Fahrrad alle Einrichtungen des täglichen Bedarfs zu erreichen. Zentral und trotzdem ruhig wohnen Sie hier in Bestlage: 2 - 4 Gehminuten zur Post und zum Supermarkt, zur nächsten Bushaltestelle, zur Volksschule Kirchdorf und zum "Blauen Platz". Auch Ärzte und die Apotheke sind zu Fuß rasch erreichbar.
Lassen Sie sich jetzt beraten und informieren Sie sich über diese besondere Wohnanlage, die ab Anfang 2025 errichtet wird. Die Fertigstellung ist Ende 2026 geplant.
Diese exklusive Wohnanlage im Zentrum von Lustenau wurde von der Revital Immobilien GmbH entwickelt.
WOHNUNG:
Die hochwertig ausgestattete 3-Zimmerwohnung mit ca. 75 m² Wohnfläche befindet sich in bester Lage in Lustenau. Die durchdachte Raumaufteilung und ausgewählte Materialien schaffen eine moderne, edle Atmosphäre. Großformatige Fliesen, eine Duschverglasung in Echtglas sowie eine erstklassige Sanitärausstattung gehören zum Standard. Der Parkettboden in Eiche kann geölt oder lackiert gewählt werden. Die Fenster werden in Holz-Alu mit 3-fach Isolierverglasung ausgeführt. Der süd-westseitig ausgerichtete, ca. 62 m² große private Garten ist eine wahre grüne Oase inmitten des modernen Flairs der Wohnanlage.
PROJEKT:
Die Wohnanlage besticht durch ihre Architektur, die hochwertige, moderne Ausstattung sowie Barrierefreiheit. Die beiden Gebäude werden in massiver Bauweise errichtet und sind mit einer Wärmepumpe mit Passivkühling über Erdsonden ausgestattet. Sowohl die Heizung und Warmwasserbereitung als auch die passive Kühlung erfolgen über die Wärmepumpe. Ergänzend wird eine PV-Anlage auf dem Dach angebracht. Auch für E-Mobilität ist gesorgt: Anschlüsse für PKW werden vorbereitet und können bei Bedarf selbst ausgeführt werden. Für Fahrräder stehen Lademöglichkeiten im Abstellraum zur Verfügung. Außerdem bietet der Fahrradraum eine Waschmöglichkeit sowie ein Reparaturset für Fahrräder. Im Eingangsbereich wird ein digitaler Infoscreen angebracht, damit Sie immer auf dem Laufenden sind. Die Paketboxen im Außenbereich des Gebäudes lassen Ihre Online-Bestellungen sicher aufbewahren. Ein Spielplatz mit Liegewiese und Sitzmöglichkeiten wird bei den jüngsten Bewohnern und deren Eltern Anklang finden. Gartenfreunde fühlen sich bestimmt wohl beim Pflegen der insgesamt vier Hochbeete oder genießen den Garten und anschließend einen Feierabendrink in der Gastronomie im Erdgeschoss des Hauses.
Das besondere Plus bietet bei Bedarf das optionale Senior-Package:
Klappsitze und Haltestangen in den Duschen, stufenlose Duschen, Lichtschalter auf 85 cm statt auf
105 cm Höhe, elektrische Türöffner für Wohnungseingangstüre.
LAGE:
Die Jahnstraße in Lustenau befindet sich im Zentrum der Marktgemeinde und bietet die Möglichkeit, fußläufig oder mit dem Fahrrad alle Einrichtungen des täglichen Bedarfs zu erreichen. Zentral und trotzdem ruhig wohnen Sie hier in Bestlage: 2 - 4 Gehminuten zur Post und zum Supermarkt, zur nächsten Bushaltestelle, zur Volksschule Kirchdorf und zum "Blauen Platz". Auch Ärzte und die Apotheke sind zu Fuß rasch erreichbar.
Lassen Sie sich jetzt beraten und informieren Sie sich über diese besondere Wohnanlage, die ab Anfang 2025 errichtet wird. Die Fertigstellung ist Ende 2026 geplant.
Ort
Weitere Informationen
Haben wir Ihr Interesse geweckt?
Dann vereinbaren Sie doch einfach einen Termin mit uns – eine Besichtigung lohnt sich.
Das Realbüro Hagen-Team garantiert professionelle Beratung und völlige Unabhängigkeit.
Durch unsere ausgeprägte Kompetenz und langjährige Erfahrung versichern wir Ihnen eine problemlose und sorgenfreie Abwicklung bis zur Schlüsselübergabe und darüber hinaus.
Ihr Ansprechpartner:
Bernd Hagen (Tel. 05577/83 111) oder
office@realbuerohagen.at
Sonstige Auslagen:
3,5% Grunderwerbsteuer
1,1% Grundbucheintragungsgebühr
1,2 % Vertragserrichtungskosten zzgl. USt. und Barauslagen
Keine Maklerprovision
Bildmaterial: Änderungen und Irrtümer vorbehalten
Dann vereinbaren Sie doch einfach einen Termin mit uns – eine Besichtigung lohnt sich.
Das Realbüro Hagen-Team garantiert professionelle Beratung und völlige Unabhängigkeit.
Durch unsere ausgeprägte Kompetenz und langjährige Erfahrung versichern wir Ihnen eine problemlose und sorgenfreie Abwicklung bis zur Schlüsselübergabe und darüber hinaus.
Ihr Ansprechpartner:
Bernd Hagen (Tel. 05577/83 111) oder
office@realbuerohagen.at
Sonstige Auslagen:
3,5% Grunderwerbsteuer
1,1% Grundbucheintragungsgebühr
1,2 % Vertragserrichtungskosten zzgl. USt. und Barauslagen
Keine Maklerprovision
Bildmaterial: Änderungen und Irrtümer vorbehalten
Dürfen wir weiterhelfen?
Ihr Ansprechpartner
Bernd Hagen
Immo Kontakt Formular
ImmoNr.: 5296_2
Weitere Immobilien in Ihrer Nähe

































