Tolle Büroräumlichkeiten mit traumhafter Aussicht in Dornbirn zu vermieten!
Bruttomiete: 1.375,48 €
ImmoNr.
5656
Vermarktungsart
Miete
Objektart
Bueropraxen
PLZ
6850
Ort
Dornbirn
Bundesland
Vorarlberg
Bruttomiete
1.375,48 €
Anzahl Zimmer
3,5
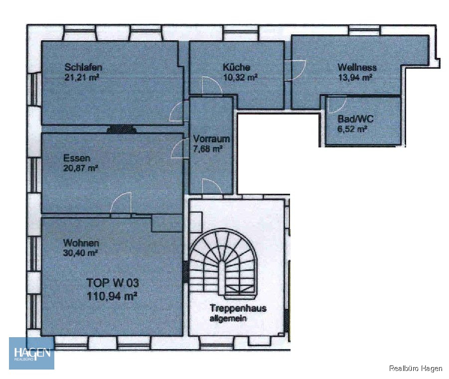
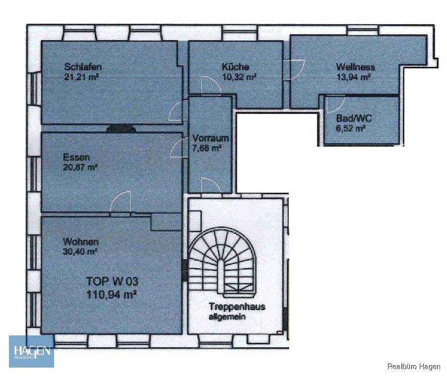
Bürofläche
110,00 m²
Nutzfläche
110,00 m²
Heizung
Gas
Tolle Büroräumlichkeiten mit traumhafter Aussicht in Dornbirn zu vermieten!
Wunderschöner Standord - Büroräumlichkeiten in Dornbirn, Oberdorf zu vermieten!
Dieses tolle Büro mit ca. 110 m² Nutzfläche befindet sich im 1. Obergeschoss einer sehr charmanten und gepflegten Altbauanlage. Bereits den Eingang des Hauses und das Stiegenhaus werden Sie und Ihre Kunden bewundern.
Einteilung:
- Gang
- Küche
- 3 Büroräume
- Badezimmer
Die wunderschönen, renovierten Zimmertüren und der charmante Kachelofen (nicht funktionstüchtig) verleihen der Wohnung einen besonderen Flair. Hier werden Sie sich beim Arbeitsplatz wohl fühlen!
Eine Parkkarte für die öffentlichen Parkplätze in der Umgebung kann bei der Stadt Dornbirn angekauft werden.
Haben wir Ihr Interesse geweckt?
Dann vereinbaren Sie doch einfach einen Termin mit uns - eine Besichtigung lohnt sich.
Das Realbüro Hagen-Team garantiert professionelle Beratung und völlige Unabhängigkeit.
Durch unsere ausgeprägte Kompetenz und langjährige Erfahrung versichern wir Ihnen eine problemlose und sorgenfreie Abwicklung bis zur Schlüsselübergabe und darüber hinaus.
Ihre Ansprechperson:
Sarah Stark (Tel. 0664/88317513) oder sarah.stark@realbuerohagen.at
Miete: € 880,00 zzgl. USt.
BK: ca. € 319,48
Kaution: € 3.600,00 mittels Sparbuch oder Bankgarantie
HWB/Klasse: 196 kWh/m²a / E
Sonstige Auslagen:
2 Bruttomonatsmieten zzgl. 20% USt. Vermittlungsprovision
Vertragserrichtungskosten
Finanzamtvergebührung
Dieses tolle Büro mit ca. 110 m² Nutzfläche befindet sich im 1. Obergeschoss einer sehr charmanten und gepflegten Altbauanlage. Bereits den Eingang des Hauses und das Stiegenhaus werden Sie und Ihre Kunden bewundern.
Einteilung:
- Gang
- Küche
- 3 Büroräume
- Badezimmer
Die wunderschönen, renovierten Zimmertüren und der charmante Kachelofen (nicht funktionstüchtig) verleihen der Wohnung einen besonderen Flair. Hier werden Sie sich beim Arbeitsplatz wohl fühlen!
Eine Parkkarte für die öffentlichen Parkplätze in der Umgebung kann bei der Stadt Dornbirn angekauft werden.
Haben wir Ihr Interesse geweckt?
Dann vereinbaren Sie doch einfach einen Termin mit uns - eine Besichtigung lohnt sich.
Das Realbüro Hagen-Team garantiert professionelle Beratung und völlige Unabhängigkeit.
Durch unsere ausgeprägte Kompetenz und langjährige Erfahrung versichern wir Ihnen eine problemlose und sorgenfreie Abwicklung bis zur Schlüsselübergabe und darüber hinaus.
Ihre Ansprechperson:
Sarah Stark (Tel. 0664/88317513) oder sarah.stark@realbuerohagen.at
Miete: € 880,00 zzgl. USt.
BK: ca. € 319,48
Kaution: € 3.600,00 mittels Sparbuch oder Bankgarantie
HWB/Klasse: 196 kWh/m²a / E
Sonstige Auslagen:
2 Bruttomonatsmieten zzgl. 20% USt. Vermittlungsprovision
Vertragserrichtungskosten
Finanzamtvergebührung
Ort
Weitere Informationen
Dürfen wir weiterhelfen?
Ihr Ansprechpartner
Sarah Stark
Immo Kontakt Formular
ImmoNr.: 5656
Weitere Immobilien in Ihrer Nähe





























