Projekt: Holzstraße 1 in Lustenau
Projekt: Holzstraße 1 in Lustenau
In zentraler Lage von Lustenau entsteht mit dem Projekt Holzstraße 1 ein Wohnbau, der moderne Architektur, nachhaltige Bauweise und hohe Lebensqualität auf überzeugende Weise vereint.
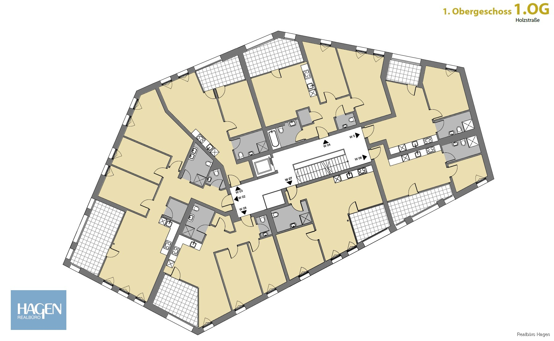
Der kompakte Baukörper mit fünf Etagen setzt einen selbstbewussten architektonischen Akzent und markiert ein federführendes Projekt für die Gemeinde Lustenau.
Entworfen vom weltweit renommierten Architekten Eberle, steht das Gebäude für eine klare, zeitlose Formensprache und höchste architektonische Qualität. Die ansprechende Klinkerfassade unterstreicht den wertigen Charakter des Hauses und verleiht ihm eine langlebige, elegante Ausstrahlung.
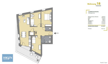
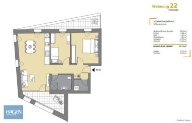
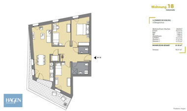
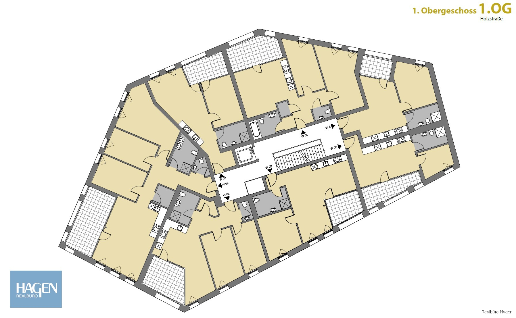
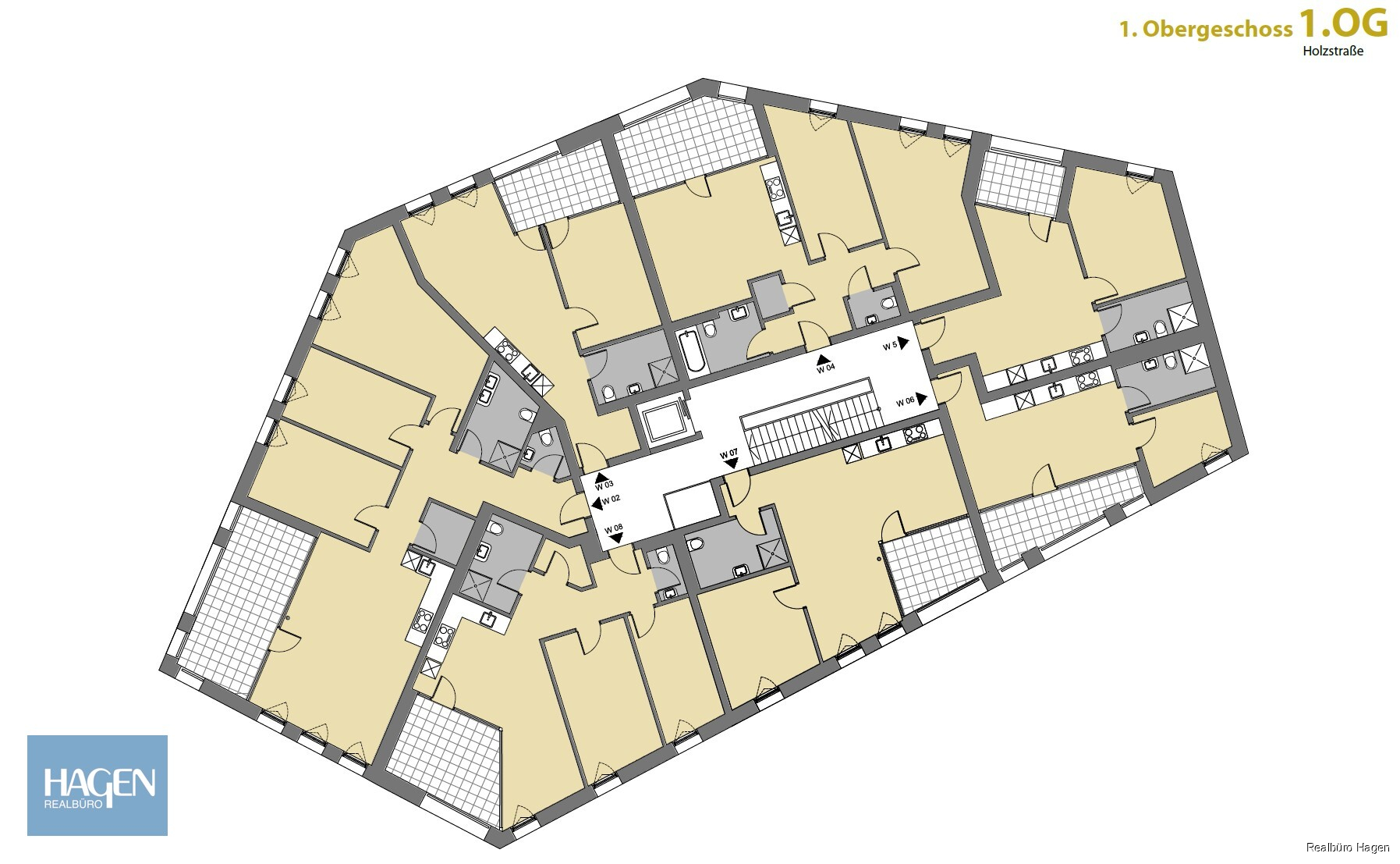
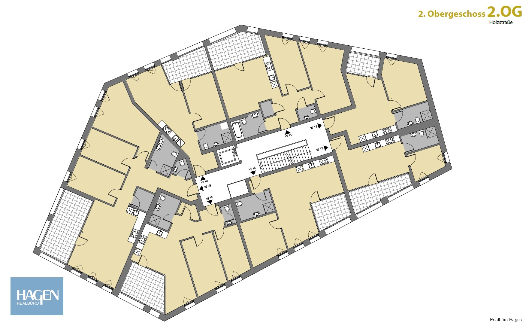
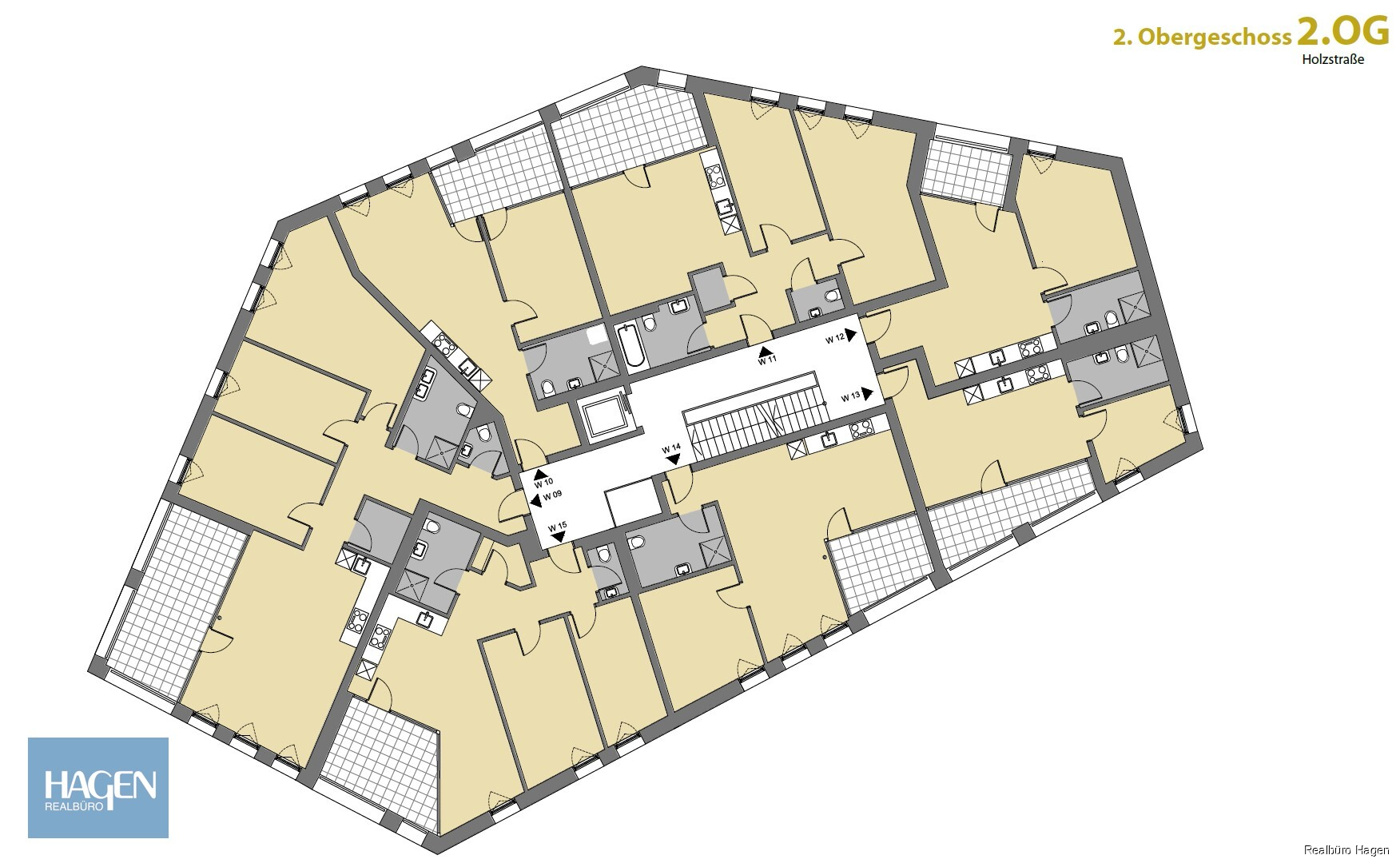
Das Projekt erfüllt modernste Anforderungen an zeitgemäßes Wohnen: Hochwertige Materialien, durchdachte Grundrisse und ein zukunftsorientiertes Energiekonzept bilden die Basis für nachhaltigen Wohnkomfort.
Die Energieversorgung erfolgt über eine effiziente Luftwärmepumpe in Kombination mit einer Photovoltaikanlage, was sowohl ökologische als auch ökonomische Vorteile bietet.
Ort
Weitere Informationen
Holzstraße 1 steht für anspruchsvolle Architektur, innovative Technik und eine zentrale Lage – ein Wohnprojekt, das Maßstäbe setzt und langfristige Qualität verspricht.
verfügbare Tiefgaragenplätze:
- TG Platz 27.000,00 €
- TG Platz überbreit 30.000,00 €
- TG-Motorrad 7.000,00 €























































































































































































